Помещение 1130. 0 м2. Продается отдельно стоящее двухэтажное торговое
Цена продажи
33000000 руб.
Помещение 1130.0 м2. Продается отдельно стоящее двухэтажное торговое помещение
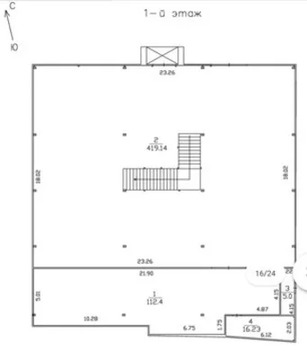
Площадь торгового помещения 1130, 5 м2. Площадь земельного участка 800 м2. Характеристика помещения: 2-х этажное отдельно стоящее торговое помещение находится на первой линии Щелковского шоссе в 8 км МКАД по направлению из Москвы, в непосредственной близости от городов Балашиха, Черноголовка, Щелково, на первой линии федеральной трассы А 103 «Щелковское шоссе». Численность населения Балашихи на 2019 год- 490 тыс. чел. Состояние помещения - с отделкой. - торговое помещение прямоугольной формы;- высота потолков не менее 3-х м, полы-кафель; - строение имеет свободный доступ;- имеет удобную просторную погрузочно-разгрузочную зону;- предоставление места на фасаде здания для размещения фирменной наружной вывески; - есть остановка общественного транспорта и пешеходный переход Парковочная зона на 10 машиномест. Коммуникации: Система электроснабжения – 50 квт. Отопление- сжиженный газ. Система водоснабжения – собственная скважина. Система водоотведения (канализации) – септик. Общественный транспорт: На пересечении с 9-й Парковой и Уральской улицами располагается станция метро «Щёлковская» Арбатско-Покровской линии, у которой находится Московский автовокзал. По шоссе проходят городские маршруты автобусов т32, т41, т83, 3, 34, 34к, 52, 68, 97, 133, 171, 223, 230, 257, 283, 627, 627к, 716, 735, 760, 833 и пригородные 300, 320, 321, 335, 338, 349, 360, 361, 362, 371, 378, 378к, 380, 384, 395, 396, 429, 447, 485, 506. От начала шоссе до пересечения с Хабаровской улицей по шоссе проходит неиспользуемая троллейбусная линия. На главной линии Горьковского направления Московской железной дороги находится ж/д станция «Балашиха». От ж/д станции «Балашиха» до «Пехра-Покровское» проходят городской маршрут автобуса № 15, маршрутное такси № 2-к Общая стоимость: 33000000 руб./месяц Этаж/этажность: 2/ Агентам: Не звонить |
1821663 24 Октября 2019 просмотров 287 |
Добавить комментарий
Похожие объявления








